Elburg – Klaverplein 54

Je bent nu hier:

Gelegen op de derde woonlaag van het mooie complex en combigebouw Klaverplein, bevindt zich dit 2-kamer appartement met ruim balkon aan de zuidwestzijde en een berging op de begane grond. Het appartementengebouw is gebouwd in 1997 en verkeerd in een uitstekende onderhoudstoestand. Ideaal is dat het gebouw is voorzien van een liftinstallatie. Vanwege de recente bouw is hier sprake van een solide gebouw en een uitstekende isolatie, waardoor een prettig comfort en leefklimaat ontstaat. Vanuit het appartement is er een prachtig uitzicht over het Klaverplein en de omgeving. Voor het appartement is er ruim voldoende parkeergelegenheid. Kortom een ideale mogelijkheid voor een starter of een klein huishouden.

Indeling:
Begane grond:
Overdekte entree en hal met centrale brievenbussen en bel-installatie, elektronisch bedienbare toegangsdeur tot het appartementencomplex, ruime hal met centrale (technische) ruimten, trapportaal en liftinstallatie.

Appartement op de derde verdieping:
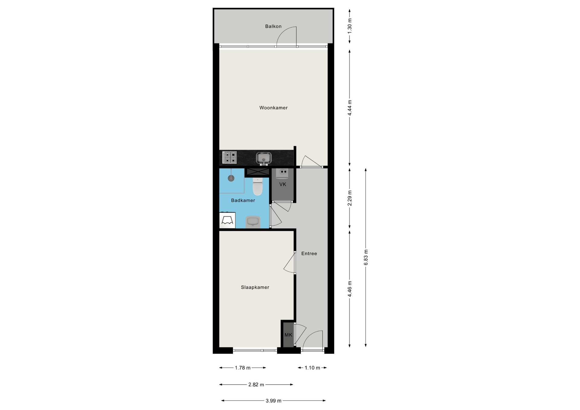
Centrale hal / ruime overloop met liftinstallatie en trapportaal, galerij aan de achterzijde naar toegangen van de woningen, entree tot het appartement, ruime hal, meterkast, garderobe, ruime slaapkamer gelegen aan de galerijzijde voorzien van rolluik, berging met opstelling HR C.V.-combiketel (2022), M.V.-unit en bergruimte, geheel licht betegelde badkamer voorzien van toilet, douchecabine en wastafelcombinatie en opstelplaats wasapparatuur. De mooie en lichte woonkamer is gelegen aan de voorzijde. Ruime zithoek met open keuken voorzien van een inbouwkeuken met diverse apparatuur, toegangsdeur tot het balkon gelegen op het zuidwesten met prachtig uitzicht.

Berging:
Aan de achterzijde van het appartementencomplex zijn de bergingen te bereiken via een grote afgesloten poort. De berging is ruim en hoog en is voorzien van elektra. Tevens kunnen bij de bergingen de containers worden gestald.

Bijzonderheden:
- Intercom / bel-installatie en lift aanwezig;
- Door uitstekende isolatie bijzonder lage energielasten;
- Bijdrage VvE circa € 130,- per maand (t.b.v. verzekering, schoonmaakkosten en reservering groot onderhoud).

Nieuwsgierig? Maak dan een afspraak voor een vrijblijvend bezoek bij dit appartement: 0525-686063. Wij nemen graag de tijd voor je!

Kenmerken

Overdracht

  • StatusVerkocht
  • Koopprijs€ 300.000,- k.k.
  • AanvaardingIn overleg

Bouwvorm

  • Soort objectAppartement
  • Soort appartementGalerijflat
  • Bouwjaar1996
  • BouwvormBestaande bouw
  • LiggingenIn woonwijk, Vrij uitzicht, Open ligging

Indeling

  • Woonoppervlakte50 m2
  • Inhoud135 m3
  • Aantal kamers2
  • Aantal slaapkamers1
  • Aantal badkamers1
  • Aantal woonlagen1

Plattegronden

Video

Panorama

Appartementencomplex

Entree

Trappenhuis

Trappenhuis

Galerij

Entree appartement

Woonkamer

Slaapkamer

Badkamer

Snel de waarde van
je woning weten?

Direct aanvragen