Elburg – Noorderkerkstraat 13

Je bent nu hier:

Gelegen in het prachtige historische binnenstadje van Elburg, wordt te koop aangeboden deze verrassend ruime, pittoreske en monumentale STADSWONING, gelegen aan de Noorderkerkstraat in Elburg. De opmerkzame onderzoeker kan ontdekken dat het stadje is opgedeeld in 4 kwarten. Dit worden de zgn. 'kwartieren' genoemd. De Noorderkerkstraat ligt in het Noorderkwartier. Dit gedeelte van Elburg behoort tot de oudste gedeeltes van dit prachtige middeleeuwse stadje. Het bouwjaar van dit pand ligt rond 1595, zoals ook te zien is op de gevel. De historie van de bewoningsgeschiedenis gaat terug tot 1875.

Zoals veel andere panden in de stad is dit een RIJKSMONUMENT en valt ook dit pand onder het beschermde stadsgezicht van Elburg. Het belangrijkste doel van deze maatregelen is om het beelden de kwaliteit van het historische stadje zo veel mogelijk in stand te houden. In tegenstelling tot veel andere oude steden is de oorspronkelijke opzet van Elburg vrij goed gebleven. En dat is iets om trots op te zijn! Evenals de diverse musea die gehuisvest zijn in het stadje. Je kunt hier denken aan het Orgelmuseum, gevestigd in het Arent toe Boecophuis, het Joodse Museum, gevestigd in de oude synagoge, de oude smederij, de prachtige Botterwerf aan de haven, de Visafslag en binnenkort de oude palingrokerij aan de Rozemarijnsteeg. Stuk voor stuk prachtig erfgoed, wat Elburg tot één van de mooiste stadjes van Nederland maakt. En dat zien veel mensen en willen hier dan ook graag wonen in deze ambiance en gezelligheid.

Noorderkerkstraat 13 is een pand met veel praktische ruimte. Een fijne woonkamer met een prachtige haard en schouw vormen het gezellige middelpunt. Aan de achterzijde is de woning uitgebouwd waardoor de woonkamer beschikt over een mooie tuinkamer met tuindeuren naar de zonnige binnenplaats/patio. Aan de andere zijde van de woning bevindt zich aan de straatzijde de eetkamer. Deze beschikt ook over een schouw (schoorsteen wordt nu niet gebruikt) en achter de eetkamer bevindt zich de keuken. De keuken is ingericht met een praktische moderne hoekkeuken v.v. diverse inbouwapparatuur. Het aanrecht heeft een fraai granito werkblad. Vanuit de keuken is de kelderruimte bereikbaar. Deze heeft een oppervlakte van circa 23 m². De hoogte is hier circa 1,50 meter en deze kelder is mooi droog. Een handige berging voor proviand en andere spullen. In de kelder is ook de C.V.-combiketel geïnstalleerd. Dit is een vrij nieuwe krachtige Intergas uit 2020.

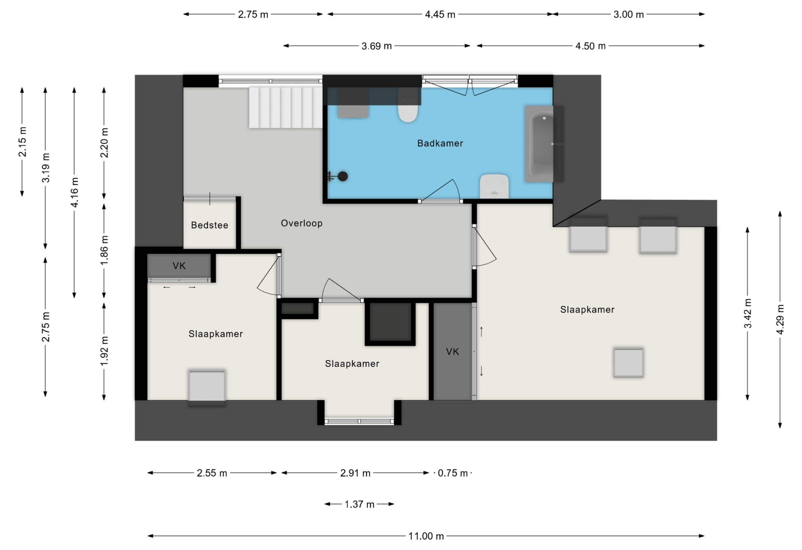
Op de verdieping zijn een 3-tal mooie slaapkamers aanwezig. De ouderslaapkamer is erg ruim en beschikt over een vaste kast. Ook de badkamer is erg ruim en volledig ingericht met een vrij staand ligbad, ruime douchehoek, wastafelmeubel en een toilet. Ook is hier plek voor de wasapparaten. Op de overloop is er nog een leuke logeerplaats in een echte bedstee.

Achter de woning ligt een binnenplaats of patiotuin van circa 3,80 bij 4,75 meter. Deze is gunstig gelegen qua bezonning en hier is nog een berging aanwezig voor het plaatsen van tuinspullen en kussens e.d. Voor de woning is er een ruime stoep, afgeschermd d.m.v. een hekwerk.

Wil je de charme en ruimte van dit pand echt beleven, maak dan een afspraak voor een vrijblijvende bezichtiging: 0525-686063.

Kenmerken

Overdracht

  • StatusBeschikbaar
  • Koopprijs€ 499.950,- k.k.
  • AanvaardingIn overleg

Bouwvorm

  • Soort objectWoonhuis
  • Soort woningHerenhuis
  • Type woningGeschakelde woning
  • Bouwjaar1595
  • BouwvormBestaande bouw
  • LiggingenIn centrum

Indeling

  • Woonoppervlakte139 m2
  • Perceeloppervlakte135 m2
  • Inhoud400 m3
  • Aantal kamers7
  • Aantal slaapkamers3
  • Aantal badkamers1

Plattegronden

Snel de waarde van
je woning weten?

Direct aanvragen