Hiermee bieden wij te koop aan dit FRAAIE DRIEKAMERAPPARTEMENT, gesitueerd in het IN HET APPARTEMENTENGEBOUW “AURELIA”, in het CENTRUM VAN ’T HARDE met INPANDIGE BERGING op de begane grond en EIGEN OVERDEKTE PARKEERPLAATS.
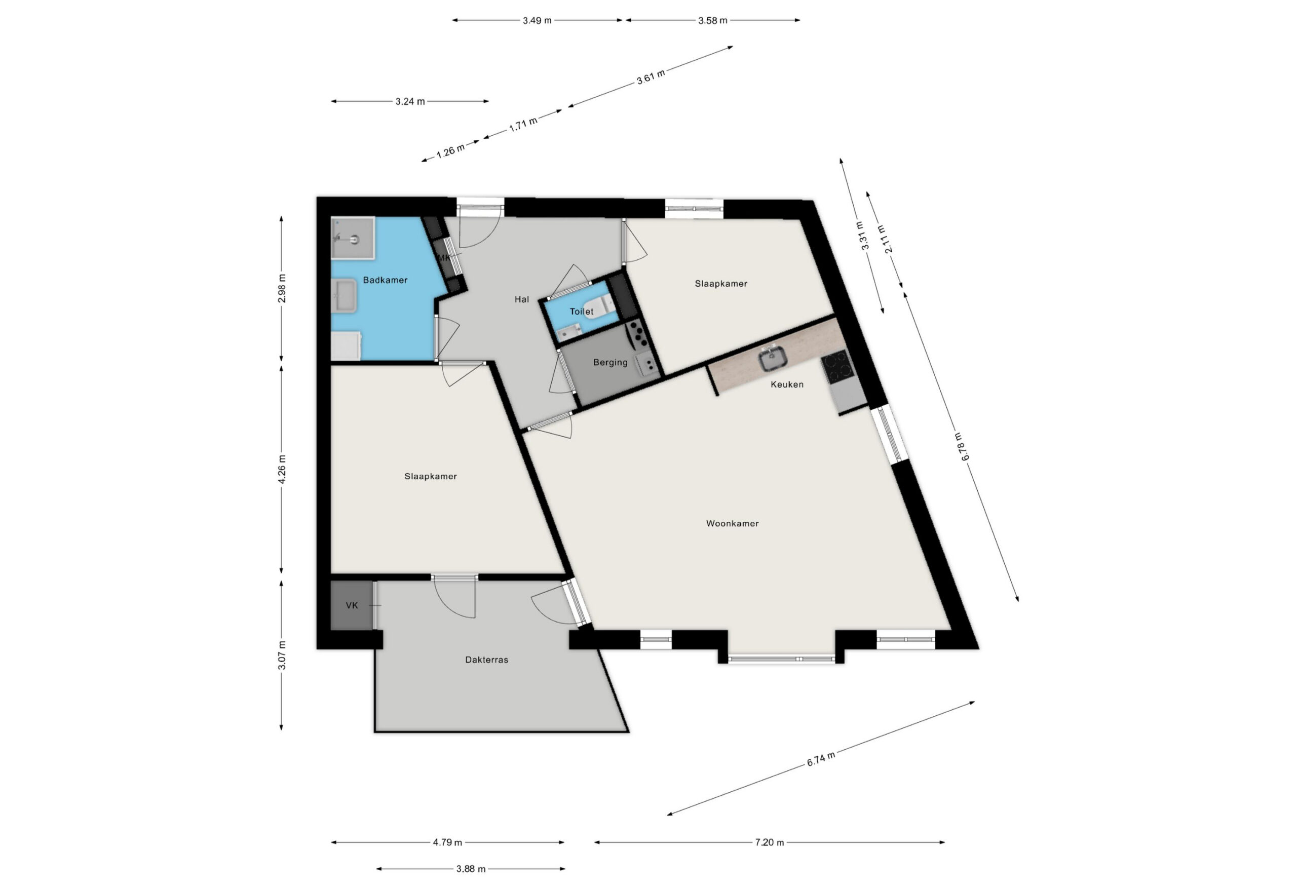
Sportlaan 35 is een mooi fris DRIEKAMERAPPARTEMENT gelegen op de eerste verdieping van dit centraal gelegen en mooie gebouw. Dit gebouw is in 2006 gerealiseerd, is solide gebouwd en een heeft een mooie eigentijdse uitstraling. Op de begane grond zijn een fysiotherapiepraktijk gehuisvest en een huisartsenpraktijk. Op de eerste en tweede verdieping zijn in totaal 9 appartementen gerealiseerd. Ook is er voor elk appartement een eigen berging op de begane grond en achter het gebouw is er een overdekte exclusieve parkeerplaats beschikbaar. Met een oppervlakte van 87 m2 en een heerlijk zonnig en ruim dakterras van circa 12 m2 kunnen we hier spreken van een een heel mooi aanbod!
Het appartement is instap klaar en heeft een goed afwerkniveau en is uitstekend onderhouden. Toilet en badkamer zijn luxe afgewerkt met mooie neutrale materialen. Er is een nette inbouwkeuken in hoekopstelling, voorzien van diverse inbouwapparatuur. In een groot deel van het appartement ligt een mooie massief eiken parket vloer en op de slaapkamers ligt tapijt.
’t Harde is een prachtig groen dorp op de rand van de Veluwe. Voor velen bekend vanwege o.a. de Tonnet kazerne, de A. Vogeltuinen en natuurlijk de prachtige ligging aan de bossen en natuurgebieden van De Haere. ’t Harde is heel mooi centraal gelegen in Nederland en is goed bereikbaar vanwege de ligging nabij de op- en afrit van de A-28 (Zwolle- Utrecht) en het NS-treinstation. Het dorp heeft circa 6.500 inwoners en de belangrijkste voorzieningen liggen allen om de hoek in het winkelcentrum. Er is voldoende ontspanning op korte (fiets)afstand, zoals prachtige fietsroutes door de Veluwse bossen, wandelroutes, fraaie landgoederen, de gezellige vestingstad Elburg met de uitgebreide terrassen, prachtige haven en sfeervolle eetgelegenheden. Voor uitgebreid winkelen kan je vlot naar Nunspeet of Zwolle.
Indeling appartement:
Hoofdentree, brievenbussen, beltableau en visafoon, royaal portiek, trappenhuis en liftinstallatie. Binnendeur naar de vleugel met individuele bergingen. De bergingen zijn ook rechtstreeks van buitenaf bereikbaar. De berging beschikt over een zoldertje en praktische stellingkasten voor het bergen van spullen.
Eerste verdieping:
Ruime verkeersruimte / dakterras met galerij naar de verschillende appartementen gelegen op deze eerste verdieping.
Royale hal, garderobe, meterkast, deur naar de bijkeuken waar de aansluitingen voor de wasapparatuur zijn. De vloer is hier voorzien van plavuizen. Luxe en licht betegelde toiletruimte v.v. wandcloset en spoelbakje. Ruime living met een gezellige zithoek en vrij uitzicht. Tuindeur vanuit de zitkamer naar het dakterras. Eethoek en aansluitend de open keuken met granieten aanrechtblad voorzien diverse inbouwapparatuur waaronder een gas op glas kookplaat, afzuigkap, koelkast, vaatwasser en oven. Veel bergruimte in de diverse kasten en lades.
Ruime en lichte ouderslaapkamer met loopdeur naar het dakterras. Tweede slaapkamer / werkkamer. Luxe betegelde badkamer v.v. ruime douchecabine en wastafelmeubel.
Bijzonderheden:
- Woonoppervlakte woning: 87 m2;
- Oppervlakte dakterras 12 m2, goede zonligging (ligging zuid-oost);
- Oppervlakte berging op de b.g.g. 5 m2, 3,30 meter hoog;
- Eigen parkeerplaats onder gezamenlijke carport en voldoende parkeerplekken in directe omgeving voor gasten / visite;
- CV-combiketel (Remeha, 2006);
- Energielabel A, uitstekend geïsoleerd;
- Zonnewering en screens, elektrisch bediend;
- Actieve VvE, maandelijkse bijdrage € 234,43 per maand.
Vooraanzicht
Algemene ruimte
Algemene ruimte
Entree
Woonkamer
Balkon
Keuken
Slaapkamer
Badkamer
Slaapkamer
Fout: Contact formulier niet gevonden.